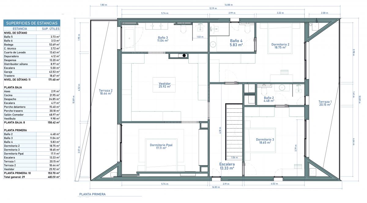
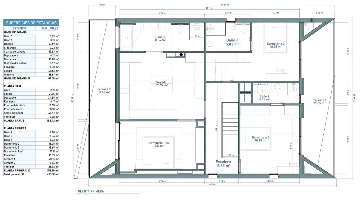
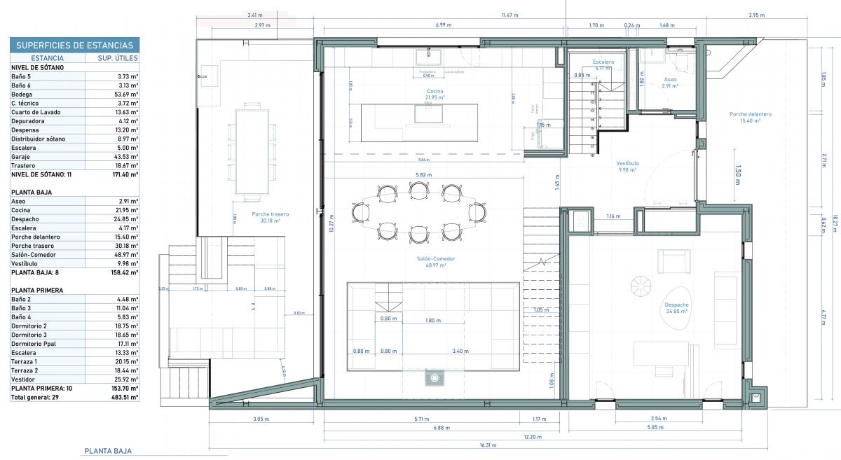
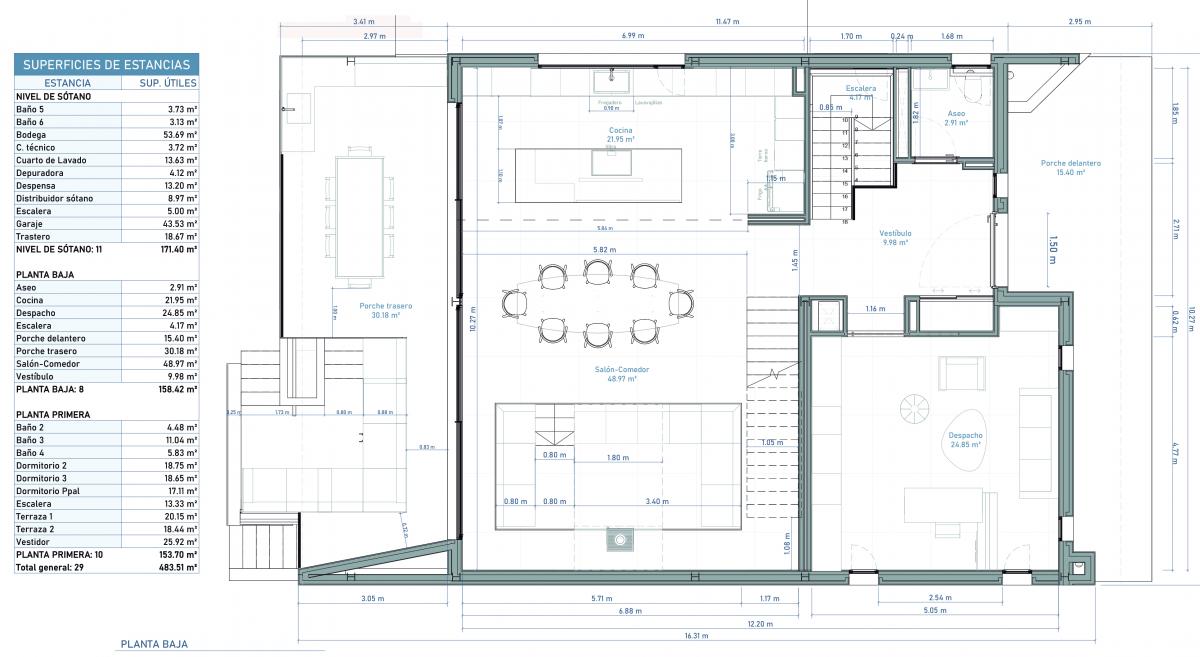
MODELO SOROLLA 540.4.4
VIVIENDA UNIFAMILIAR PLANTA SÓTANO, BAJA Y PRIMERA
Construcción de chalet de lujo en Villaviciosa de Odón, Madrid

Villaviciosa de Odón, Madrid
Colección de imágenes











Construcción de chalet de lujo en Villaviciosa de Odón, Madrid











