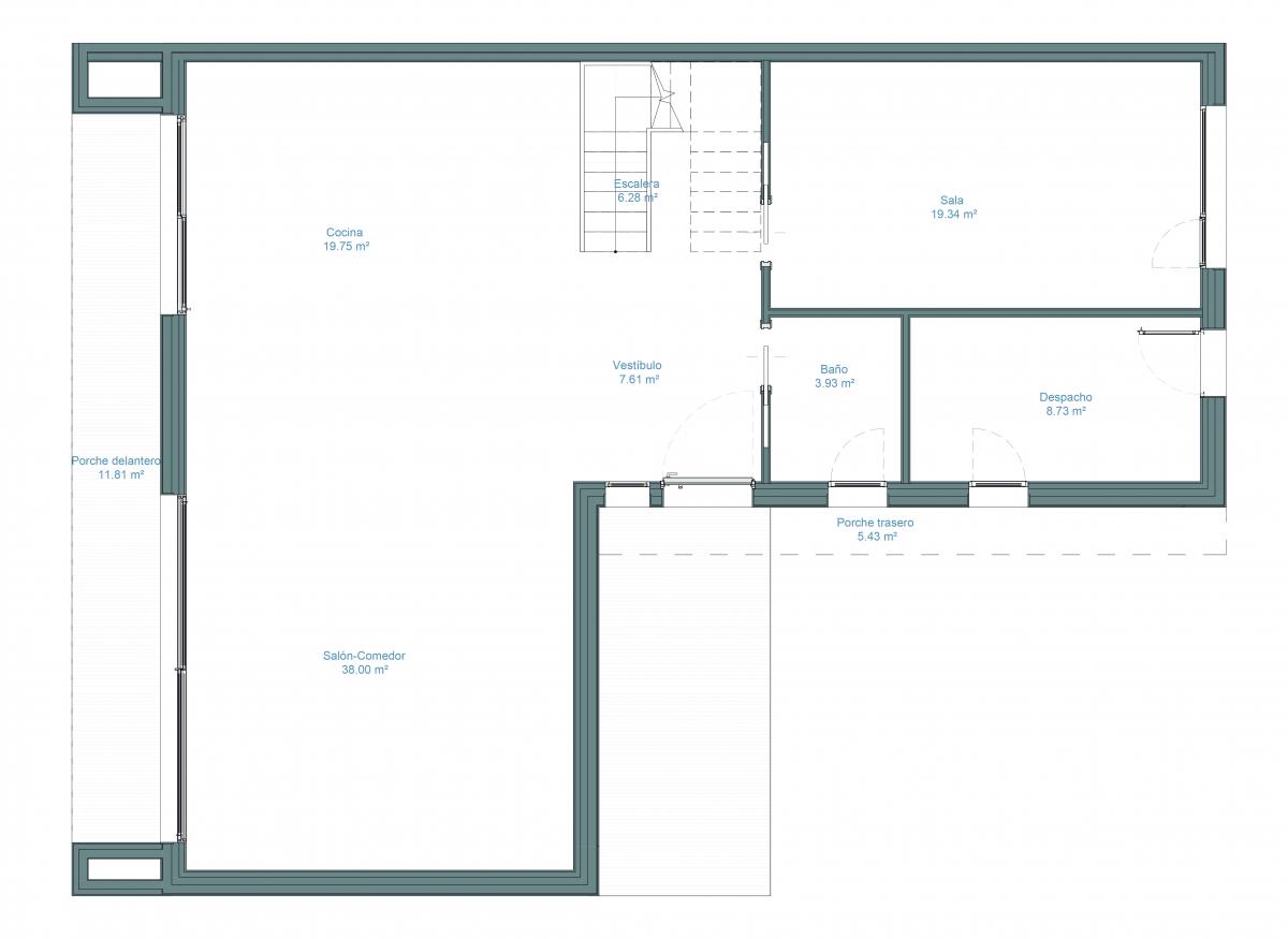
MODELO GOYA 284.5.3

VIVIENDA UNIFAMILIAR DE PLANTA BAJA Y PRIMERA

Construcción de chalet de lujo en Boadilla del Monte, Madrid

MODELO GOYA  284.5.3
Boadilla del Monte, Madrid

Colección de imágenes

MODELO GOYA  284.5.3

MODELO GOYA  284.5.3

MODELO GOYA  284.5.3

MODELO GOYA  284.5.3

Crea tu presupuesto
Instagram WhatsApp Email Teléfono